Search

318 - 25 PEN LAKE POINT ROAD,

Property Overview - Apartment For sale

Price$ 699 500On the Market20430 days
MLS® #X12566740TypeApartment
Bedrooms2 BedBathrooms2 Bath
Postal CodeP1H2E8
Property SizeBuilding Size0

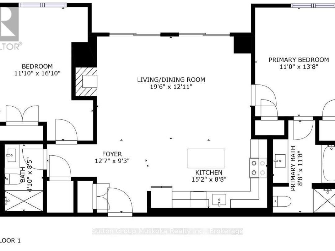
Immaculate two-bedroom condominium located in the Lakeside complex at Muskoka's premier resort - Deerhurst! This large two-bedroom unit with almost 1100 sq. ft. of living space offers an open concept living, dining and kitchen area with two sliding doors providing access to your private balcony. In the living room you will find a natural gas fireplace with a large flat screen TV above, the kitchen offers a center island, stainless steel appliances, plenty of cabinets for storage and loads of counter space. The master bedroom features a king-sized bed, large picture window, wall mounted TV, two closets plus a custom ensuite with soaker tub, glassed walk-in shower and large vanity. The second bedroom offers plenty of room and currently includes a double bed plus a bunk bed, the bunk bed could be removed to allow for a larger bed. This unit is located steps away from the pool and beach on Peninsula Lake. Peninsula Lake is part of a chain of lakes offers over 40 miles of boating, you can boat directly into Downtown Huntsville, stroll Main Street, and enjoy the many restaurants and shops. Deerhurst offers something for everyone in the family - the famous 18-hole Deerhurst Highlands course is perfect for the golfer in the family, beach, pools, tennis, disc golf, trails, gyms, restaurants and much more. Unit can be kept personal use or placed on the resort rental program with Deerhurst. HST does not apply to the sale. Enjoy the Deerhurst resort lifestyle in beautiful Muskoka! Live, vacation and invest in Canada!

Land Details

Ownership TypeCondominium/Strata
Zoning DescriptionC4

Building Details

TypeApartment
Property TypeSingle Family
Bathrooms Total2
Bedrooms Above Ground2
Bedrooms Total2
Cooling TypeCentral air conditioning
Exterior FinishStucco
Foundation TypeConcrete
Heating FuelNatural gas
Heating TypeForced air

Rooms

Main levelFoyer3.83 m x 2.81 m
View Property on Interactive MapDriving Directions (Google Maps)


This listing of a Single Family property For sale is courtesy of TREVOR DOCHERTY from Sutton Group Muskoka Realty Inc.