Search

152 HOLDITCH STREET,

Property Overview - House For sale

Price$ 524 900On the Market20438 days
MLS® #X12583294TypeHouse
Bedrooms4 BedBathrooms2 Bath
Postal CodeP1L1E9
Property SizeBuilding Size0

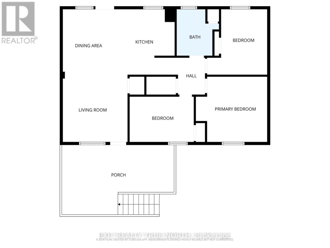
Experience true Muskoka living in this beautifully updated raised bungalow perfectly designed for multigenerational living or income potential. Nestled in the heart of Bracebridge, this move-in-ready home offers a flexible layout, modern finishes and a prime location. The main level features three bright bedrooms, a full bathroom and convenient main floor laundry. The open-concept layout flows seamlessly through a refreshed eat-in kitchen and living area filled with natural light. Step out onto the front deck to enjoy your morning coffee and peaceful seasonal views of the Muskoka River just across the street. The walk-out lower level has a separate entrance and offers a spacious one-bedroom apartment, complete with its own kitchen and full bath, perfect for extended family, guests or rental income. Outside, the property is ideally positioned across from a quiet parkette, beach and direct river access - perfect for swimming, kayaking or simply soaking in the Muskoka scenery. Located minutes from downtown Bracebridge, schools, parks and trails, this home combines comfort and versatility, whether you're looking for a family home, an investment or a place to share with loved ones. Don't let this amazing opportunity pass you by!

Land Details

Size Frontage50
Size Depth133 ft ,6 in
Lot size50 x 133.5 FT
Ownership TypeFreehold
Zoning DescriptionR1

Building Details

TypeHouse
Property TypeSingle Family
Bathrooms Total2
Bedrooms Above Ground3
Bedrooms Below Ground1
Bedrooms Total4
Architectural StyleRaised bungalow
Cooling TypeNone
Exterior FinishVinyl siding
Foundation TypeBlock
Heating FuelNatural gas
Heating TypeRadiant heat
Utility WaterMunicipal water

Rooms

Main levelPrimary Bedroom3.77 m x 3.44 m
View Property on Interactive MapDriving Directions (Google Maps)


This listing of a Single Family property For sale is courtesy of RYAN ALLARY from EXIT REALTY TRUE NORTH