5823 12 HIGHWAY,
Property Overview - For sale
| Price | $ 3 500 000 | On the Market | 20439 days |
|---|---|---|---|
| MLS® # | S12371183 | Type | |
| Bedrooms | 0 Bed | Bathrooms | 0 Bath |
| Postal Code | L3V1C2 | ||
| Property Size | Building Size | 0 |
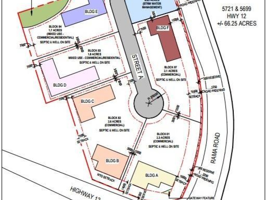
A future commercial development site as a sleek, modern hub with dynamic architecture and thoughtful landscaping. Presenting a rare and high-potential mixed-use development opportunity at 5823 Highway 12 in Ramara, Ontarioan expansive 13.156-acre parcel strategically located at the intersection of Highway 12 and Rama Road, minutes from Lake Simcoe, Casino Rama, and Orillia. The site benefits from excellent visibility and access, with future road upgrades anticipated and proximity to major regional corridors. Environmental studies indicate minimal constraints, with a small wetland buffer in the northwest corner and inclusion in the Lake Simcoe Protection Plan area. Planning work is underway, including traffic impact, stormwater management, and market analysis. With pre-consultation completed and municipal support for intensification, the site is primed for a transformative project featuring approximately 469,366 sq ft of gross floor area. One of the proposed concepts includes 58 townhome units across nine blocks, a 105-unit, seven-storey seniors residence, two single-storey commercial buildings with 10 retail units and a drive-through, and a six-storey hotel with 126 rooms. Zoned Village Residential (VR), the property permits multi-unit dwellings, care facilities, and accessory commercial uses, with septic and well systems currently allowed and municipal servicing under review. .
| Size Frontage | 329 |
|---|---|
| Size Depth | 909 ft ,4 in |
| Lot size | 13.16 |
| Zoning Description | VR/VC/VIN (H) |
This listing of a Vacant Land property For sale is courtesy of KIRILL KANEVSKY from SUTTON GROUP-ADMIRAL REALTY INC.

